4 Zimmer Wohnung zur individuellen Modernisierung
24937 Flensburg





Energieausweis
Endenergiebedarf: 106,00 kWh/(m²·a)
Was Sie über dieses Objekt wissen sollten
- 7577
- Wohnung
- 1964
- 4
- 1
- 1
- 73 m²
- 1
- Fernwärme
- Ja
Objektbeschreibung
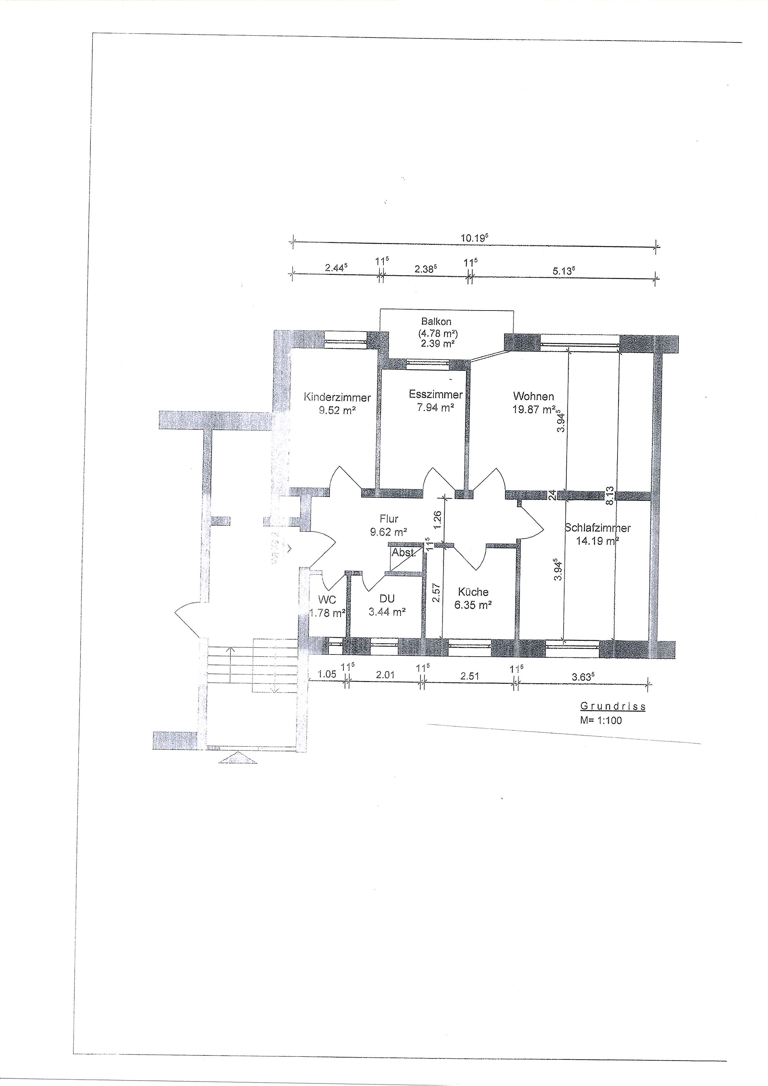
Diese in Flensburg/westl. Höhe gelegene 4 Zimmer-Wohnung befindet sich im Hochparterre und verfügt über eine Wohnfläche von 72,71 m². Das zentral gelegene Mehrfamilienhaus mit 2 x 6 Wohneinheiten wurde 1964 in Massivbauweise errichtet.
Vom hellen Wohnzimmer aus gelangen Sie in auf den nach Süd ausgerichteten Balkon. Die Besonderheit dieses Balkons ist, dass sich dieser mit wenig Aufwand mit Fenster schließen lässt, so kann dieser auch in kälteren Jahreszeiten genutzt werden. Die Küche ist mit einer älteren Küchenzeile ausgestattet worden. Das Dusch-Bad mit Fenster wurde vor einigen Jahren neu gefliest. Hier gibt es auch einen Waschmaschinenanschluss. Das größere Schlafzimmer liegt zum ruhig gelegenen, grünen Innenhof. Ein Glasfaseranschluss steht fürs schnelle Surfen zur Verfügung. Die Fenster mit Außenrollläden wurden zwischen 2004 – 2008 durch Kunststoff-Isolierfenster ersetzt. Eine eigener PKW-Stellplatz rundet das Angebot ab. Das gesamte Objekt ist gepflegt und wird von einer großen Rasenfläche mit Bäumen und Gehölzen umrahmt.
Weiterhin stehen Ihnen ein Trockenboden (Fahrstuhl vorhanden), 1 kleiner Kellerverschlag, und ein Fahrrad-Keller zur Verfügung.
Das Haus ist an das Fernwärme-Netz der Stadtwerke Flensburg angeschlossen (Heizung und Warmwasserversorgung).
Die lichtdurchflutete Wohnung befindet sich in einem renovierungsbedürftigen Zustand. Das heißt es müssten; Bodenbeläge erneuert werden, Malerarbeiten durchgeführt werden, Modernisierung der Küche.
Ausstattung und Besonderheiten dieses Objektes
Massivbauweise
Kellerraum,
Fahrradkeller,
Dachboden
Küchenzeile
Balkon
Modernes Duschbad
Glasfaseranschluss
PKW Stellplatz
30er Zone
Gute Infrastruktur in der Nähe
Lage und Umfeld dieser Immobilie
Das Objekt befindet in Unistadt Flensburg (ca. 90.000 Einwohner), im angesagten Stadtteil westliche Höhe. In der Nähe befinden sich gute Einkaufsmöglichkeiten, Schulen, Kitas, Krankenhäuser, eine Schwimmhalle, etc. Zur Innenstadt sind es zu Fuß ca. 2 km. Ebenso befindet sich eine Bushaltstelle in der Nähe. Auch der Bahnhof ist nur 2,5 km entfernt. Zum Ostseestrand (Wassersleben) sind es ca. 5 km. Auch ein großer Forst, die Marienhölzung, lädt ein zum joggen, walken, oder einfach nur einmal die frische Waldluft genießen.
Das Objekt ist derzeit unbewohnt, und wird mietfrei übergeben.
Die richtige Immobilie war noch nicht dabei?
Wir senden Ihnen passende Angebote per E-Mail!