DHH in ruhiger Wohnlage von 23974 Blowatz
23974 Blowatz







Energieausweis
Endenergiebedarf: 155,90 kWh/(m²·a)
Was Sie über dieses Objekt wissen sollten
- 7478
- Haus
- 1996
- 4
- 3
- 1
- 1
- 110 m²
- 270 m
- 3
- Gas
Objektbeschreibung
Verbrauchsausweis : 155 kWh ( m²a) KL: E
Diese DHH, mit guter Bausubstanz, wird aus wird aus Altergründen verkauft und kann kurzfristig übernommen werden.
Sämtliche Räumlichkeiten stehen zur Renovierung bereit.
Von der Größe des Hauses ist es für eine 4 köpfige Familie ideal.
Die Gaszentralheizung wurde im Jahre 2020 erneuert wobei das Warmwasser über einen Durchlauferhitzer
eingespeist wird.
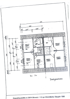
Der ausgebaute Dachboden bietet sich für ein Freizeit/ Hobbyraum bestens an.
Die Terrasse liegt an der Süd/ West Seite so das Sie das schöne Wetter bis Abends genießen können.
Ein Carport mit einem Abstellraum und ein zusätzlicher PKW Stellplatz runden das Angebot ab.
Vom Obergeschoss haben Sie einen Weitblick bis zur Insel Poel...
Ausstattung und Besonderheiten dieses Objektes
Massivbauweise
Moderne elektrische Leitung
Gas Zentralheizung 2020
Ausgebauter Dachboden
Idyllischer Garten
Haus Wirtschaftsraum
Carport mit Abstellraum
Zusätzlicher PKW Stellplatz
Lage und Umfeld dieser Immobilie
Blowatz ist eine Gemeinde im Nordosten des Landkreises Nordwestmecklenburd in Mecklenburg - Vorpommern.
Die Gemeinde wird vom Amt Neuburg mit dem Sitz in der Gemeinde Neuburg verwaltet.
Das Gemeindegebiet von Blowatz liegt nordöstlich der Hansestadt Wismar auf dem Festland gegenüber der Insel Poel.
Vom Objekt bis zur Insel Poel sind es ca. 6 km, also ideal für eine Fahrradtour.
Getrennt wird die Insel von den jeweils etwa 1 km breiten Boddengewässern Breitling und Zaufe.
Der nächste Bahnhof befindet sich im ca. 8 km entfernten Neuburg mit der Strecke Rostock - Wismar.
Über die nahe gelegene B 105 erreichen Sie bestens die Hansestadt Wismar und auch die A 20 mit den Richtungen Rostock und Lübeck.
Die DHH liegt in einer Sackgasse mit einer angenehmen Wohnlage.
Geschäfte des täglichen Bedarfs finden Sie in der Nähe.
Die richtige Immobilie war noch nicht dabei?
Wir senden Ihnen passende Angebote per E-Mail!